PHASES OF CREATION OF A PARK
02.- DETAILED CONCEPTUAL DESIGN PROJECT
This phase is critical to ensuring the successful implementation of the park project, as it involves a thorough analysis of all elements and components, including an accurate budget and detailed cost estimate. By defining and specifying each aspect of the project, the technical team can ensure a smooth and efficient construction process, minimizing risks and unforeseen events.
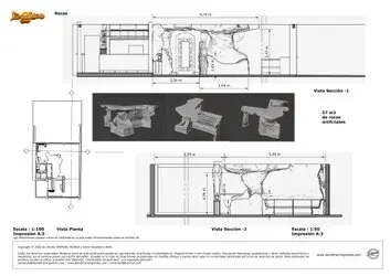
The Detailed Conceptual Design Project thoroughly develops each area of the park design. It includes the creation of dimensioned drawings, element elevations, measurement lists, dimensioned sections, scaled designs, and surface renderings. It also offers construction advice and manufacturing estimates, delivering all documentation in digital and physical formats with graphical scales.
This exhaustive project breakdown allows manufacturers to accurately estimate the resources and budget required to produce each component, facilitating more efficient planning and execution. It also enables the identification of potential risks and savings opportunities, resulting in a streamlined and cost-effective production process.
David's commitment to the project's success extends beyond conceptual design; he is equally dedicated to overseeing the construction phase to ensure every detail meets his rigorous quality standards. He works closely with the construction team, ensuring the project is executed with excellence and precision.
2.- EXAMPLE CONCEPTUAL DETAIL
VIDEO OF CONCEPTUAL DETAIL DEVELOPMENT
David Theming Works is a leader in theme park, water and attraction design, delivering unique experiences powered by storytelling. Using story-driven attractions and narrative theme parks, David Theming Works creates immersive experiences that transport guests to another world. Through the power of storytelling, they can create an emotional connection with visitors and make them feel like they are part of the experience. With his innovative approach to theme park design and attractions, David Theming Works has become a leader in the industry.
David's creativity in creating spectacular amusement parks has made the entertainment business successful. His ability to combine elements from various amusement parks and create something completely new and unique has led to unforgettable customer experiences.










